B&B in Valpolicella

In the heart of Valpolicella,
a stay for business or relaxation,
between Lake Garda, Verona and Lessinia.

The rooms

At the top of a farmhouse surrounded by vineyards

3 rooms with double bed and sofa bed. Independent air conditioning.

Important: all rooms can be accessed via stairs that are not currently equipped with all the necessary systems for people with limited mobility.

Prices will be agreed according to your period of stay.

Just call us or drop a line to be welcomed in newly renovated rooms in a farmhouse nestled among vineyards.
Its peculiar location will allow you to be our guest in an extremely quiet and reserved environment.

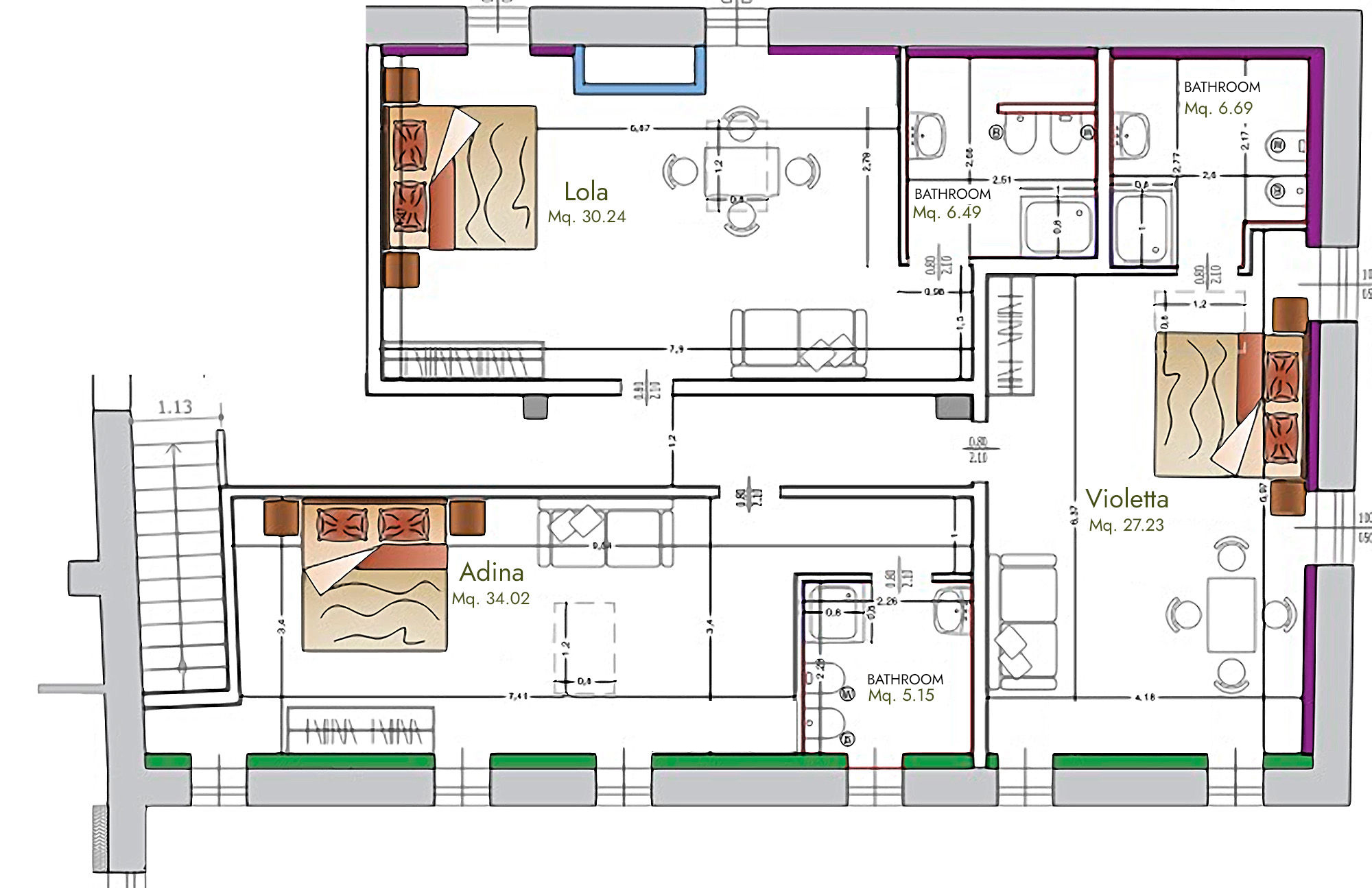
Lola

 Facing north.

 Left in the corridor, it occupies a space of 30,24 square meters.

 There is a 6,49 square meter private bathroom with a shower and forced ventilation.

View the room layout

Adina

Facing south.

 Right in the corridor, it occupies a space of  mq 34,02.

 There is a 5,15 square meter private bathroom with a shower. There is a window in the bathroom.

View the room layout

Violetta

Facing east.

 At the end of the corridor, it occupies a space of 27,23 square meters.

 There is a 6,69 square meter private bathroom with a shower and forced ventilation.

View the room layout

The names of the rooms

Lola, Adina and Violetta are the characters of three operas: "Cavalleria Rusticana" by Pietro Mascagni, "L’elisir d’amore" by Gaetano Donizetti and "La traviata" by Giuseppe Verdi, respectively. Our choice of name was as natural as the environment surrounding our B&B. The essence of music that moves sensitive souls across the world—even at this very moment—has inspired the process of naming the spaces for your stay and relaxation.

Valpolicella has a unique culture, characterized by wine, marble and Romanesque churches. Yet, it is still closely connected with the wonderful city of Verona. Verona hosts an international audience at the Roman Colosseum, the famous "Arena,” every year for its opera season. Ca' Bernai's proximity to lake Garda also adds prestige to its location.

Breakfast*

Breakfast is served in our dining room or, upon request, directly to your room. Breakfast includes cappuccinos, milk, tea, coffee, fruit juices, yogurt, cereal, homemade cakes, typical Valpolicella&Lessinia cheeses and cold cuts, butter, jam, bread, croissants, cookies and fruit.

We will fullfil any requests you may have, concerning celiac disease, food intolerances or allergies.

*Breakfast and tourist tax are included in the room price.

Services

Free parking in the back of the building

When you arrive, call us and we will guide you to the area reserved for you.

Wi-fi

Network connection in all rooms.

Air conditioning

Each room has independent air conditioning.

TV

Each room is equipped with a satellite television set.

Fridge

Refrigerator with freezer in each room.

Contacts

Address

B&B Ca' Bernai
Via Case Sparse Vaioi, 2 - 37015
Gargagnago
Sant'Ambrogio di Valpolicella
Verona
Italy

REGIONAL IDENTIFICATION CODE

Name of the establishment: B&B Ca' Bernai
Region code: 023077-BEB-00023
Establishment code: B00012
CIN: IT023077C1CJRHT2EK
CIR: 023077-BEB-00023
Municipality: Sant'Ambrogio di Valpolicella